Nekretnine > Zemljišta >

arrow back
Novogradnja, Dobrinja
117.225 KM
contactKontaktiraj prodavca

Opis

Građevinska dozvola:
Da
Uknjiženo/ZK:
Da
Vrsta oglasa:
Prodaja
Urbanistička dozvola:
Da

dodatni opis

NOVOGRADNJA DOBRINJA! FUNKCIONALNI STANOVI VRHUNSKE KVALITETE U STAMBENOJ ZGRADI U IZGRADNJI, DOBRINJA

 

ŠIFRA NEKRETNINE: 142/24

 

Sa zadovoljstvom vam objavljujemo prodaju stanova površine od 46,89m2 do 59,28m2 u novom stambenoj objektu u izgradnji spratnosti P+8 na izuzetno pristupačnoj lokaciji Dobrinja IV, Istočna Ilidža. Predmetna nekretnina je smještena na mirnoj i pristupačnoj lokaciji u ulici Muhameda i Vlade Mehmedbašića, Dobrinja IV. Stamebna zgrada smještena je u prirodnom okruženju a u  bližem okruženju se nalaze svi neophodni sadržaji za život poput šoping centra, trgovine, autobuskog i trolejbuskog stajališta, ambulante, apotekem, škole, aerodroma itd. Prilikom gradnje koriste se izuzetno kvaliteni materijali što u kombinaciji sa funkcionalnim rasporedom prostorija predstavlja idealno mjesto za život. Na podu će biti postavljne kvalitetan parket i keramičke pločice. Unutrašnja stolarija je drvrna a vanjska PVC. Predviđeno je centralno grijanje (kotlovnica).

 

Iz ponude izdvajamo sljedeće stanove:

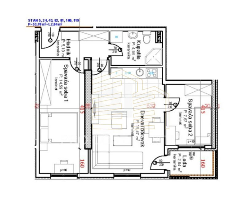
Stan V8 – I sprat : Dnevni boravak sa kuhinjom i trpezarijom, dvije spavaće sobe, kupatilo i balkon

Stan V15 –  II sprat: Dnevni boravak sa kuhinjom i trpezarijom, dvije spavaće sobe, kupatilo i balkon

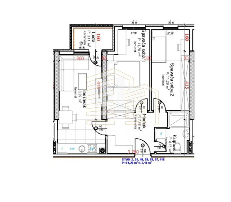
Stan G34 – IV sprat: Dnevni boravak sa kuhinjom i trpezarijom, spavaća soba, kupatilo i balkon

Stan V45 – V sprat: Dnevni boravak sa kuhinjom i trpezarijom, dvije spavaće sobe, kupatilo i balkon

Stan V57 – VI sprat: Dnevni boravak sa kuhinjom i trpezarijom, dvije spavaće sobe, kupatilo i balkon

 

Stambeni objekat je u fazi izgradnje a planirani završetak svih Juli 2025. godine.

Cijena: 117.225,000 KM

 

Lokacija: Predmetna nekretnina je smještena na mirnoj i pristupačnoj lokaciji u ulici Muhameda i Vlade Mehmedbašića, Dobrinja IV. Stamebna zgrada smještena je u prirodnom okruženju a u  bližem okruženju se nalaze svi neophodni sadržaji za život poput šoping centra, trgovine, autobuskog i trolejbuskog stajališta, ambulante, apotekem, škole, aerodroma itd.

 

Sve ostale informacije možete dobiti na kontakt telefon: + 387 61 835 959

Certificirana agencija za posredovanje u prometu nekretnina

PRO COST NEKRETNINE

Registarski broj posrednika: 81/2023

Envera Šehovića be. 21-23

E-mail:[email protected]; Web: www.procostnekretnine.ba

Želite prodati ili iznajmiti Vašu nekretninu uz najbržu realizaciju? Javite nam se na gore navedene brojeve telefona!

VAŠ PRO COST TIM!