Nekretnine > Stanovi >

arrow back
Sarajevo
Saraj City /Stan 69m2 Novogradnja Centar
po dogovoru
contactKontaktiraj prodavca

Opis

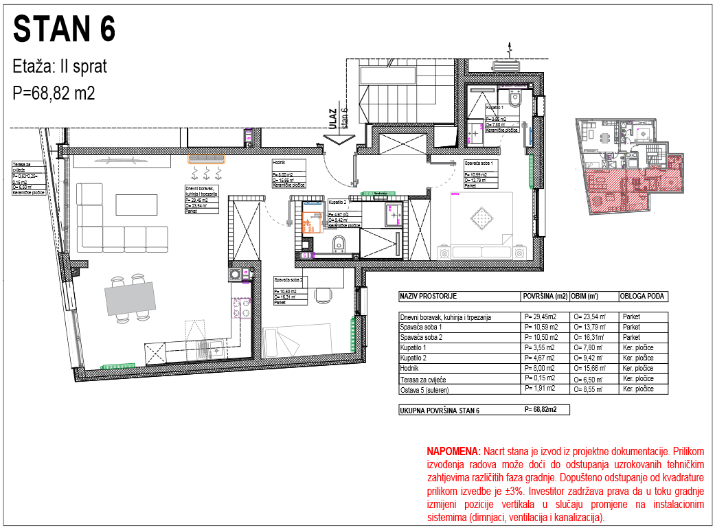
Broj kvadrata:
69
Novogradnja:
Da

dodatni opis

NA PRODAJU
Dva preostala stana u novoj zgradi naselje Mejtaš ulica Abdica. Stanovi veličine 68 m2, na prvom i trećem spratu. Useljivo. 062/649-370

1.1 KONSTRUKCIJA
armirano-betonski nosivi zidovi
armirano betonske međuspratne ploče
pregradni zidovi u stanovima zidani, opeka 20 cm.
zidovi između stanova i hodnika su toplinski izolirani postavkom EPS ploča debljine 8 cm.

1.2 KROV
Tip kosi, dvovodni sa drvenom konstrukcijom u slijedećim slojevima :
drvena krovna konstrukcija
daščani pokrov 2,5 cm
paropropusna i vodonepropusna folija
pokrov u vidu kvalitetnog crijepa sa svim pripadajućim elementima

1.3 FASADNI SISTEM

Fasadni sistem je sastavljen od : termofasade debljine 10 cm – tip Baumit sa pro-mineralnom glet masom i organskom završnom žbukom te aluminijskim,vanjskim klupicama u boji stolarije.
1.4 VANJSKA STOLARIJA
Kvalitetna vanjska PVC stolarija- u antracit boji izrađena od petokomornih profila , sa Lowe troslojnim staklom punjenim argonom koje omogućava dodatnu toplinsku izolaciju jer je argon teži od zraka – bezbojan je, nema miris i nije toksičan.

Vanjske roletne sa automatskim mehanizmom za dizanje / spuštanje preko elektro motora integrisanog u kutiju roletne. Upravljanje je omogućeno korištenjem prekidača na zidu što predstavlja spoj estetske komponente te dodatnog komfora za vlasnike stanova.

2.0 ZAJEDNIČKI DIJELOVI
Ulazni prostor objekta, stubište obloženi prvoklasnim keramičkim pločicama u savremenim dimenzijama.
Posebno brojilo struje, vode i plina za svaki stan , daljinska očitanja stanja

3.0 OSTAVE

Pod popločan keramičkim pločicama
Zidovi gletovani i bojeni poludisperzivnom bojom
Ventilacija ostava

4.0 GARAŽE

Glavna ulazna vrata rolo vrata sa elektromotorom na daljinsko upravljanje
Zidovi bojani poludisperzivnom bojom

5.0 VANJSKO UREĐENJE

Kolni dijelovi asfaltirani
Hortikulturno uređenje zelenih površina
Dekorativna rasvjeta objekta

6.0 VISINE I MATERIJALI UNUTAR STANOVA
6.1 VISINA STANA

Svijetla visina od poda do stropa je 265 cm +/- 2 cm

6.2 STOLARIJA

Unutarnja vrata bijele boje u izvedbi visine do stropa podižu estetsku komponentu završnih materijala prostora.
Luksuzna ulazna protuprovalna vrata -koja predstavljaju pouzdan i funkcionalan proizvod koji zadovoljava najstrože zahtjeve vezano za protivprovalnost,termo i zvučnu izolaciju te vatrootpornost ali i vrhunski dizajn u završnoj izvedbi. Vrata imaju integrisanu elektrobravu „proizvođač „CISA“ uz korištenje beskontaktne tehnologije – korisnici otvaraju vrata jednostavnim držanjem kartice do čitača.

6.3 SANITARNE PROSTORIJE

Izvedena SIKA izolacija i to dvokomponentni polimercementni premaz Sikalastic 152 u dva sloja te elastične trake Sika SealTape –S trake za spojna dijelu pod / zid na podu kupaona i dijelu u tuš kabinama.
Prvoklasne sanitarije i oprema : Grohe , Viega itd. Brižno birana oprema za kupaone daje dašak luksuza i završnog dodira za kupaonske prostore .
Zidovi sanitarnih prostorija obloženi keramikom I klase , do stropa.

6.4 PODOVI

Kupaone,toaleti , terase su obložene keramičkim pločicama I klase.

Podovi svih ostalih prostorija u stanu su u vidu :

Parketne dužice Podne obloge su u vidu fabrički finalno obrađeog višeslojnog panelnog parketa – sedam puta brušen i lakiran te učvršćen ultraljubičastim zracima za postojanost i otpornost laka. Kvalitet obrade garantuje otpornost na habanje te nepropustljivost spojeva na tekućine u svakodnevnoj upotrebi ( voda, kafa itd.) .

7.0 INSTALACIJE
7.1 VODA I KANALIZACIJA

Posebno brojilo za svaki stan
Instalacije vodovoda od proizvođača Geberit
Vertikale kanalizacije od niskošumnuih cijevi radi smanjena buke

7.2 GRIJANJE I HLAĐENJE

Plinsko etažno grijanje – kondenzacijski sistem renomirani brand “Viessmann” uz pripadajući smart (wirelless) termostat koji omogućava potpunu kontrolu usluge grijanja korištenjem pametnih uređaja kao što su mobilni telefon ili tablet.
Kvalitetan klima uređaj -uz smart / wirelless plansko upravljanje putem aplikacije na pametnom telefonu, tabletu ili računaru. Zahvaljujući ovoj tehnologiji komfor je podignut na nevjerovatan nivo a osjećaj upravljanja na daljinu daje dodatnu sigurnost i u konačnici smanjuje troškove jer u svakom momentu možete provjeriti da li je klima uređaj uključen ili ugašen, u kojem je modusu rada i slično.

7.3 ELEKTROINSTALACIJE

Smart videofon nove generacije- koji se koristi i putem aplikacije na svim vrstama pametnih uređaja (moguće otvaranje vrata na daljinu)
Utičnice za TV mrežu i telefon u svakoj sobi
Roletne sa pogonom na elektromotor