Nekretnine > Poslovni prostori >

arrow back
BAULAND/ Atraktivan poslovni prostor 219m2/ Importanne Centar - [Iznajmljivanje]
po dogovoru
contactKontaktiraj prodavca

Opis

Broj prostorija:
1
Broj kvadrata:
219

dodatni opis

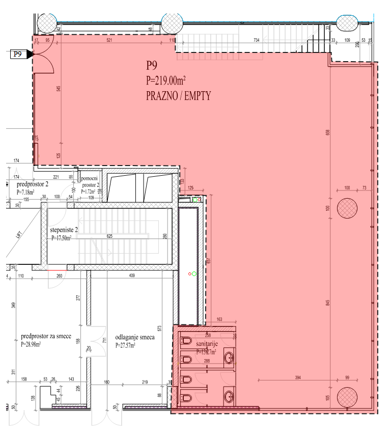
BAULAND izdaje poslovni prostor površine 219,00 m² (oznaka: P9), smješten u prizemlju tržnog centra "Importanne", u samom komercijalnom i kulturnom središtu Sarajeva.

Ovaj višenamjenski prostor raspolaže otvorenim tlocrtom s visokim stropovima i velikim staklenim portalima, orijentisanim kako prema unutrašnjosti centra, tako i prema vani. Takva prostorna dispozicija omogućava zakupcu fleksibilno uređenje interijera u skladu s vlastitim potrebama i namjenom poslovanja.

Prostor posjeduje priključak vode i opremljen je s dva toaleta. Pogodan je za različite tipove djelatnosti poput uslužnih djelatnosti, maloprodaje, kancelarijskog poslovanja, ugostiteljstva bez kuhinje, te za franšizne brendove koji zahtijevaju visoku frekvenciju posjetilaca. Napominjemo da prostor nije pogodan za restoransku djelatnost jer ne sadrži kuhinju niti dimnjak za pripremu hrane.

Importanne Centar obuhvata tri etaže i više od 15.000 m² površine s raznovrsnim sadržajima. Na prizemlju se nalaze poznati modni brendovi, prodavnice kozmetike, modnih dodataka i opreme, frizerski salon, poslovnica Sparkasse banke te gastronomski objekti. U suterenu su smještene samoposluga, prodavnice tehnike, igračaka, odjeće, dodataka prehrani, kućne opreme i dekoracija, kao i zona za gaming te sadržaji za brzu i zdravu okrjepu.

Posjetiteljima je na raspolaganju parking s kapacitetom od 425 mjesta na etažama -2, -3 i -4.

Dodatne informacije

Za sve dodatne informacije o prostoru, režijskim troškovima i cijeni najma, kao i za dogovor oko termina obilaska, slobodno nas kontaktirajte na broj telefona +387 62 300 402 (Viber/WhatsApp), ili putem e-mail adrese [email protected]Tlocrt poslovnog prostora dostupan je u nastavku oglasa.

Želimo Vam pružiti najbolju moguću uslugu, stoga smo uvijek spremni odgovoriti na Vaša pitanja.